联系邮箱: sengui@sgv.cc|English|русский

G45J直流式衬胶隔膜阀产品概述
直流式衬胶隔膜阀适用温度: ≤ 85℃ 适用介质: 腐蚀性密封圈材料选择:天然胶、氯丁胶、丁腈胶、丁基胶、氟像胶、三元乙丙胶 。G45J直流衬胶隔膜阀主要用来改变通路断面和介质流动方向,具有导流、截止、调节、节流、止回、分流或溢流等功能。阀门可用于控制水、蒸汽、油品、气体、泥浆、各种腐蚀性介质、 液态金属和放射性流体等流体的流动。 G45J衬胶隔膜阀是一种特殊形式的、具有截断功能的阀门,其吝惜闭件由钢质阀瓣与软质材料(橡胶和氟塑料复合)制成的隔膜组成,并将阀体内腔与阀盖内腔隔开,以达到截断管内介质之目的。
G45J直流式衬胶隔膜阀结构特点
5. 隔膜可更换,维护费用低;
6. 衬里材料的多样性,可适用于各种介质,并具有强度高、耐腐蚀性能好的特点。
G45J衬胶直流式隔膜阀设计规范:遵循GB 1239,BS 5156标准。
驱动方式:手动、气动(常开或常闭)、电动。
法兰连接隔膜阀
设计与制造符合中国国家标准
基本结构形式:堰式,直流式
公称压力PN0.6~1.0(Mpa)
公称能径DN15-400(mm)
手动 | G41J(堰式) | 手动 | G641J(往复式) |
G41F5(堰式) | G641F5(往复式) | ||
G45J(直流式) | G6B41F(常闭式) | ||
G45F5(直流式) | G6B41F5(常闭式) | ||
电动 | G9B41J(防爆式) | 电动 | G941J(普通型) |
G9B41F5(防爆式) | G941F5(普通型) |
遵循规范 | STANDARD |
设计与制造 | GB12239 |
结构长度 | GB1221/JB1688 |
法兰尺寸 | JB78/JB79(GBHGSH) |
压力试验 | GB/T13927 |
标签 | GB12220 |
供货 | GB/T12252 |
G45J衬胶直流式隔膜阀主要零部件材料表:
序号 | 零件名称 | 灰铸铁 | 铸钢 | 不锈钢 | 超低碳钢 | ||
Z | C | P | R | PL | RL | ||
1 | 阀体、阀盖、阀瓣 | HT250 | WCB | CF8 | CF8M | CF3 | CF3M |
2 | 阀杆 | 35 | 1Cr13 | 1Cr18Ni19Ti | 1Cr18Ni12Mo2Ti | 00Cr18Ni10 | 00Cr17Ni14Mo2 |
3 | 衬里层 | FEP(F46)PFA PCTFE(F3) | |||||
4 | 隔膜 | FEP(F46)/CR(氟丁橡胶)PFA(可溶性聚四氟乙烯)/FPDM(乙丙橡胶) | |||||
5 | 阀杆螺母 | ZCuAL10Fe3 ZCuAL10Fe3 | |||||
6 | 螺栓 | 35 | 35 | 1Cr17Ni2 | 1Cr17Ni2 | 1Cr17Ni9Ti | 1Cr17Ni9Ti |
7 | 螺母 | 45 | 45 | 0Cr18Ni9 | 0Cr18Ni9 | 0Cr18Ni9 | 0Cr18Ni9 |
8 | 手轮 | HT200 | HT200 | WCC | WCC | WCC | WCC |
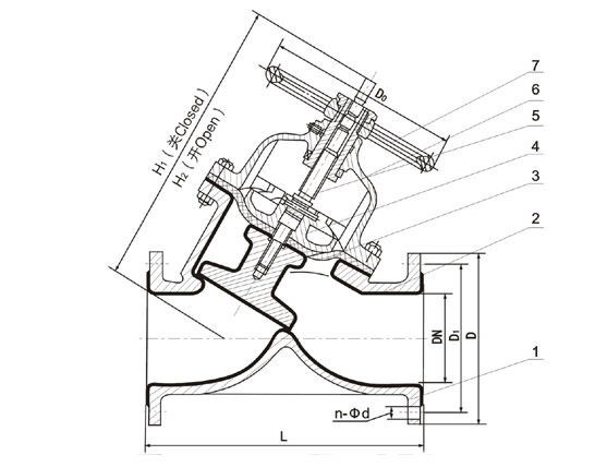
G45J衬胶直流式隔膜阀安装尺寸及重量

DN | 公称压力 | 工作压力 | L | D | D1 | n-φd | F | H1 | H2 | D0 | 重量 |
25 | 0.6 | 0.6 | 145 | 115 | 85 | 4-14 | 2 | 178 | 190 | 120 | |
32 | 160 | 140 | 100 | 4-18 | 2 | 196 | 217 | 140 | |||
40 | 180 | 150 | 110 | 4-18 | 3 | 196 | 217 | 140 | 14 | ||
50 | 210 | 165 | 125 | 4-18 | 3 | 219 | 240 | 200 | 20 | ||
65 | 250 | 185 | 145 | 4-18 | 3 | 264 | 272 | 200 | 29 | ||
80 | 300 | 200 | 160 | 4-18 | 3 | 285 | 315 | 280 | 42 | ||
100 | 350 | 220 | 180 | 8-18 | 3 | 352 | 383 | 320 | 61 | ||
125 | 400 | 250 | 210 | 8-18 | 3 | 470 | 515 | 320 | 79.5 | ||
150 | 0.4 | 460 | 285 | 240 | 8-22 | 3 | 508 | 554 | 400 | 150 | |
200 | 570 | 340 | 295 | 8-22 | 4 | 602 | 660 | 500 | 236.5 | ||
250 | 680 | 395 | 350 | 12-22 | 4 | 708 | 786 | 500 | |||
300 | 790 | 445 | 400 | 12-22 | 4 |
更多衬胶、衬氟隔膜阀的相关产品:
| H44F46旋启式衬氟止回阀 | Q41F46衬氟球阀 |
| H40J浮球式衬胶止回阀 | H41F46升降式止回阀 |
| D371F4衬氟蝶阀 | D71F46衬氟蝶阀 |
| J45F46直流式衬里截止阀 | G41F46衬胶隔膜阀 |
| J41J衬胶截止阀 | J41F46衬胶截止阀 |
| EG641J气动衬胶隔膜阀 | EG6B41J常闭式英标气动隔膜阀 |
| G45J衬胶直流式隔膜阀 | G6K41J常开式气动衬胶隔膜阀 |
| G46J直通式衬胶隔膜阀 | G41W无衬里隔膜阀 |
| EG6K41J英标常开气动衬胶隔膜阀 | J45J直流式衬胶截止阀 |
| H44J-10 旋启式衬胶止回阀 | 常闭式气动衬胶隔膜阀G6B41J |
| EG41J英标隔膜阀 | G49J三通衬胶隔膜阀 |